APPARTAMENTO IN COSTRUZIONE CONSEGNA 2026

In vendita
Camerino - Via Parisani, 23
270.000 €
Appartamento
Categoria
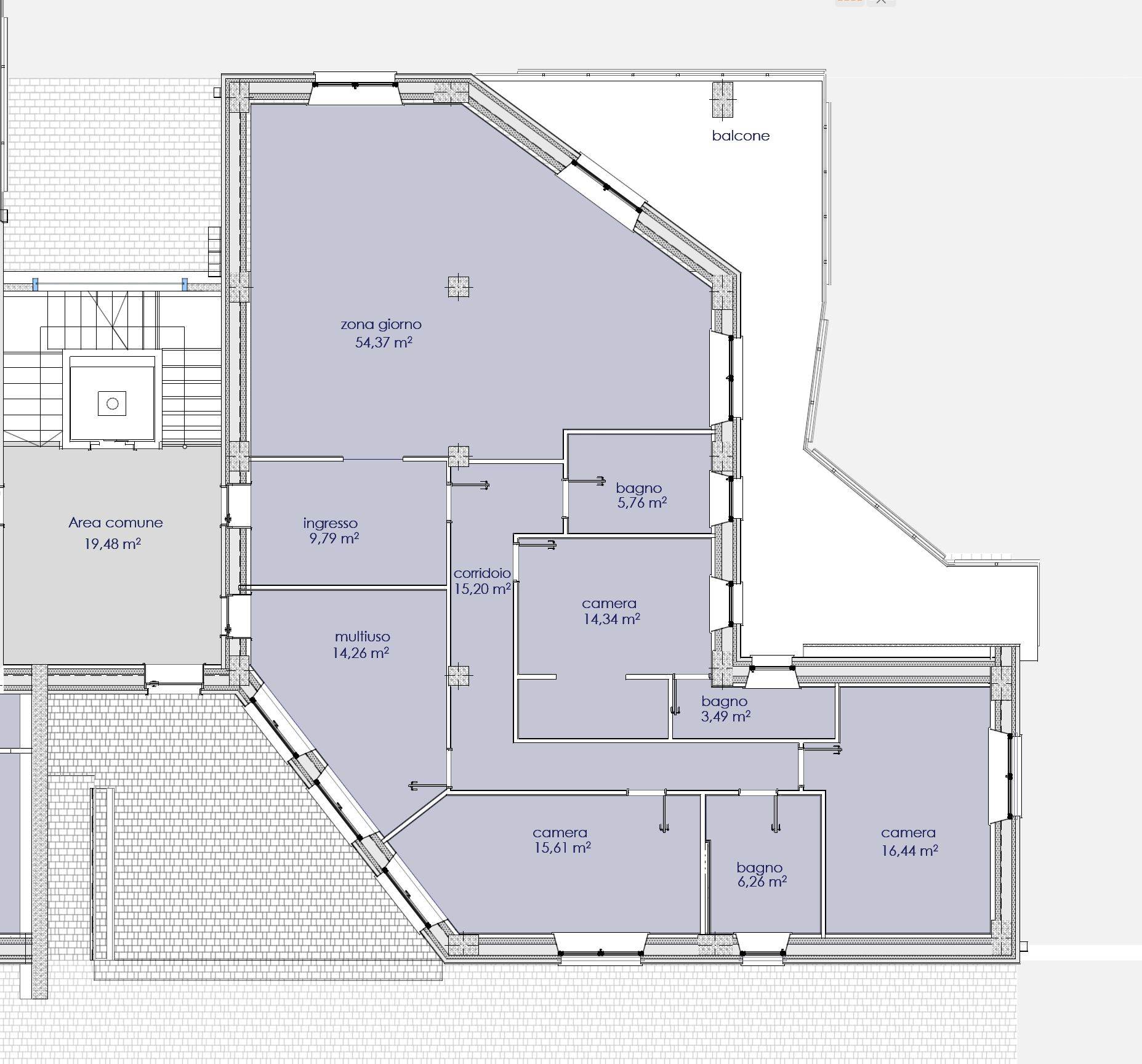
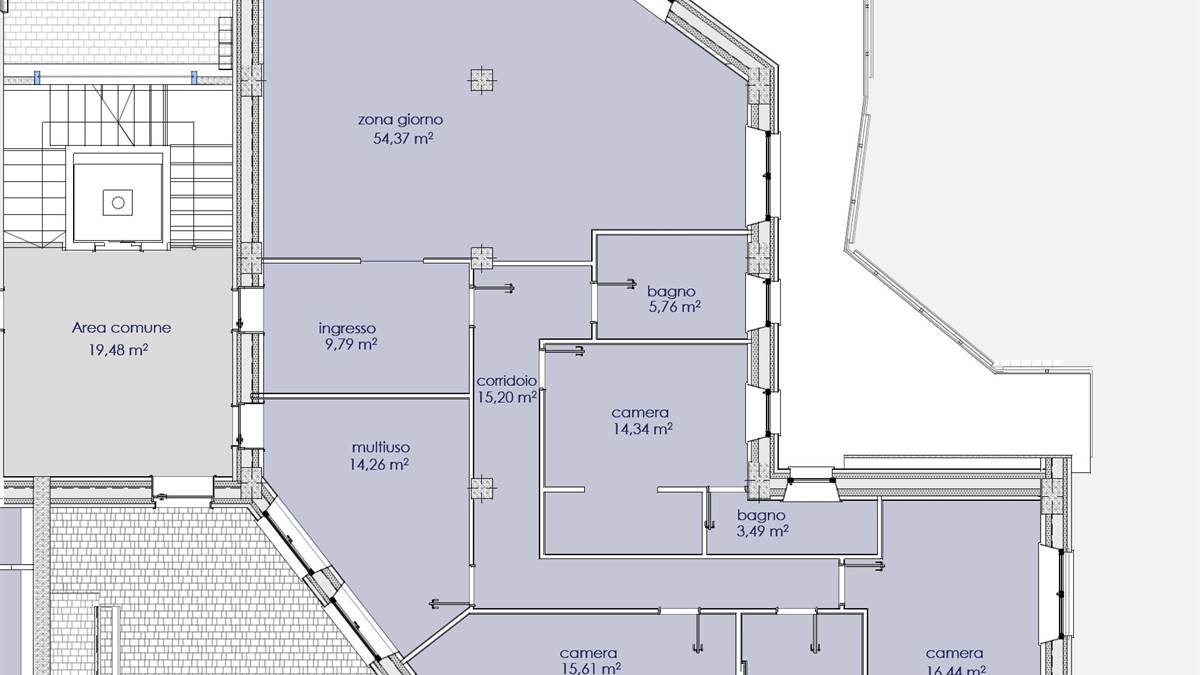
170
m2
8
Locali
3
Camere
2
Bagni
1
Box
Descrizione
Via Parisani , Zona Le Mosse, proponiamo Appartamento in Costruzione al 2°Piano,su Palazzina composta da poche unità. L'IMMOBILE sarà dotato delle migliori tecnologie e ampio garage accessibile con ascensore interno. Previste anche le colonnine esterne per la ricarica delle auto elettriche. Nuova e privata strada che permette un accesso molto comodo. Possibilità di una diversa ridistribuzione degli interni, di scelta dei materiali. Nel VIDEO sotto potete osservare la tecnica con cui è costruito l'immobile
Siamo a disposizione in Agenzia per fornirvi più dettagliate caratteristiche.
Caratteristiche principali
Codice:
A01CAM
Città:
Camerino
Categoria:
Appartamento
Locali:
8
Camere:
3
Bagni:
2
Mq:
170
Box:
1
Mq Box:
48
Balconi:
2
Mq Balcone:
35
Classe energetica:
A4
Stato Immobile:
Prossima Realizzazione
Grado:
Signorile
Posizione:
Collina
Panorama:
Vista Aperta
Riscaldamento:
Autonomo
Tipo Riscaldam.:
Pompa di Calore
Tipo Impianto:
Pavimento
Fonte Energetica:
Fotovoltaico
Raffrescamento:
Predisposizione
Infissi:
PVC
Serramenti:
Nuovo
Accessori
Ascensore
Impianto Fotovoltaico
Mappa
Distanze
Posizione
Centro200 m
Istruzione
Università500 m
Altri servizi
Chiesa100 m
Farmacia300 m
Ospedale1 km
Supermercato200 m
Video
Cookie preference