PALAZZINA BIFAMILIARE IN COSTRUZIONE

In vendita
Tolentino - via Chiesa, 5
330.000 €
4 o più locali
Categoria
140
m2
6,5
Locali
3
Camere
2
Bagni
1
Box
Descrizione
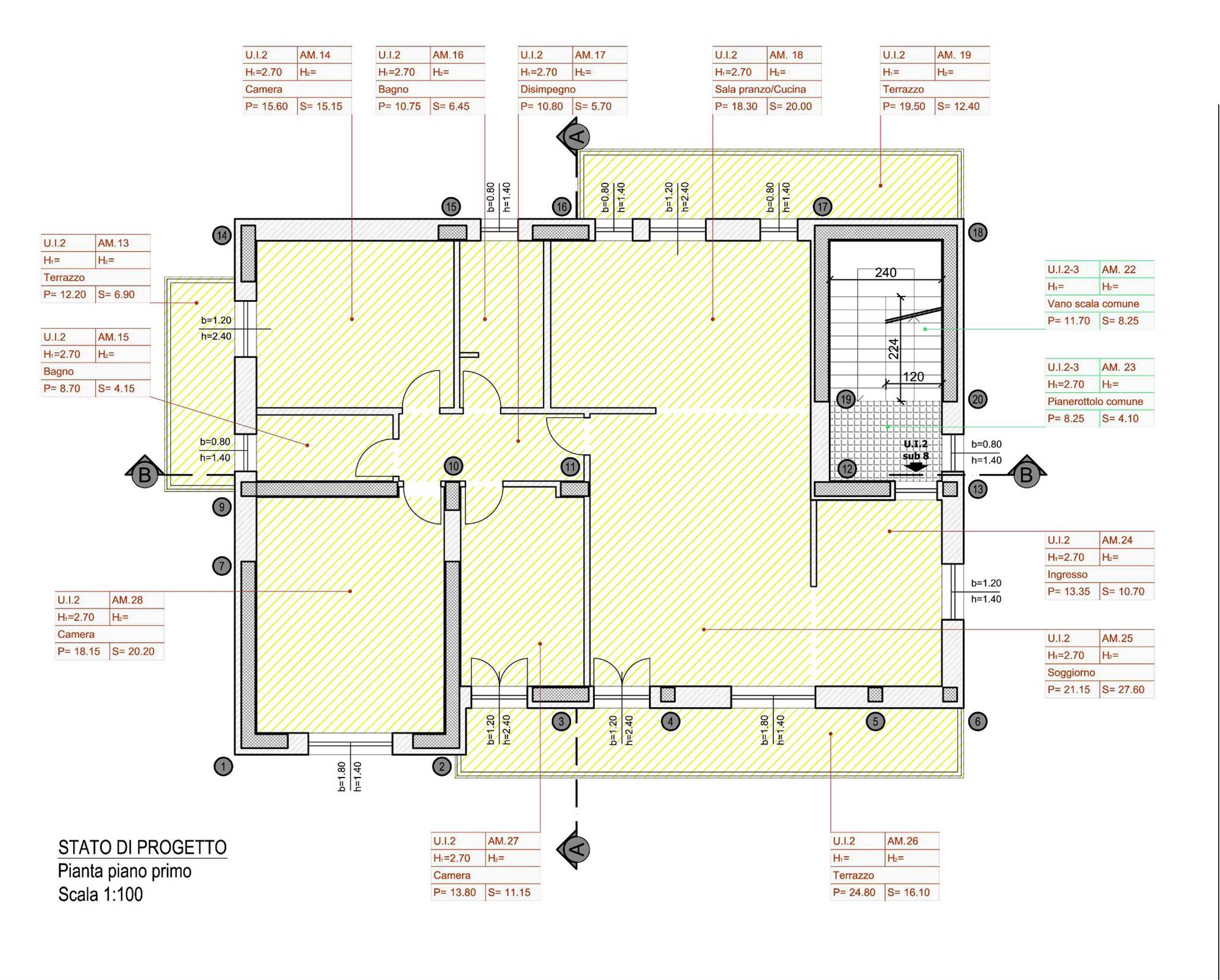
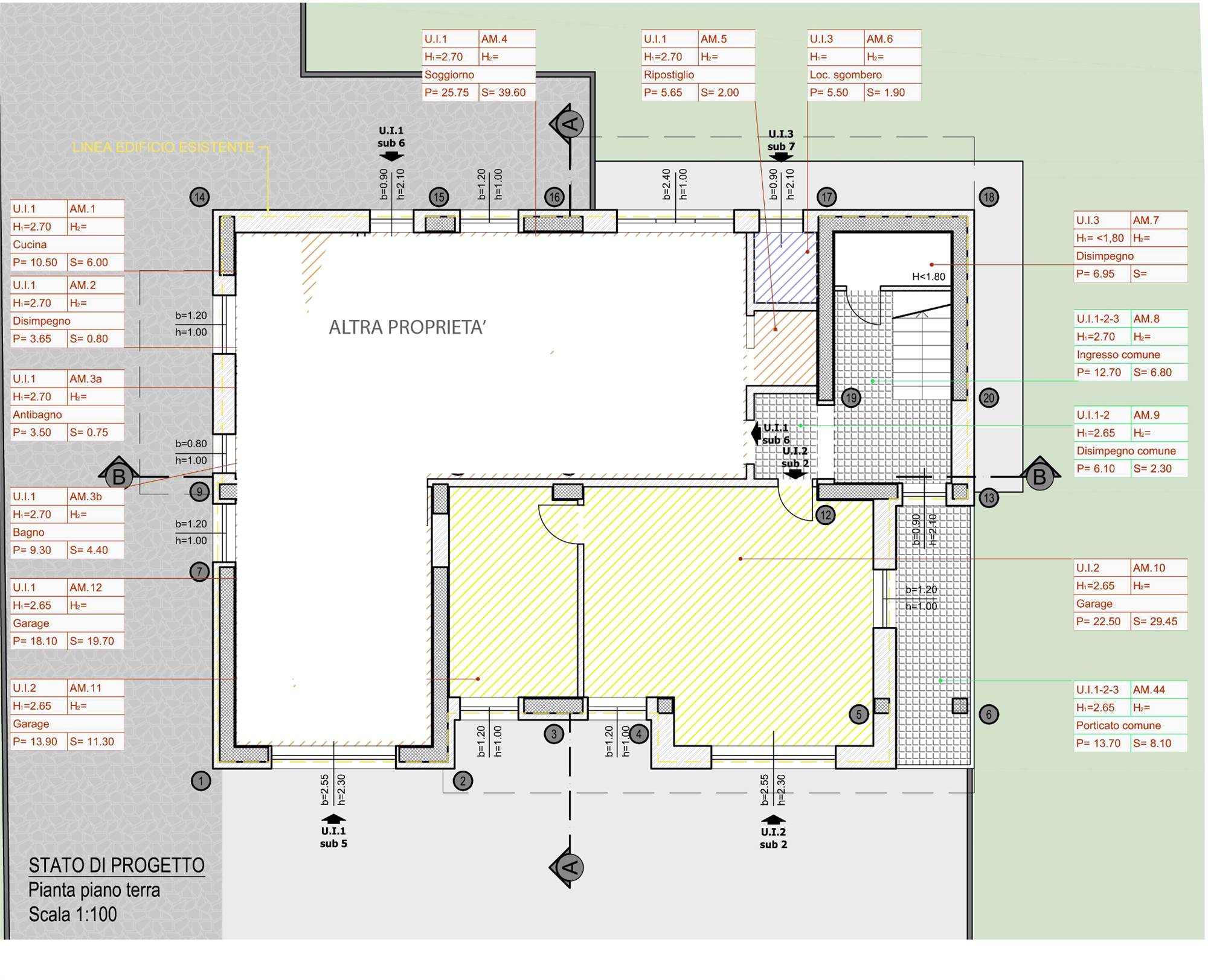
Via Damiano Chiesa - Proponiamo in Vendita Appartamento mq 140 al Primo Piano,(con ascensore privato) soffitta praticabile, Balconi mq 28, Garage Piano Terra mq 50, Corte Privata mq 190.La Palazzina si sviluppa per tre piani fuori terra più il sottotetto ed ha una destinazione residenziale. Il Piano Terra è destinato a Garage, i due Piani Superiori sono due unità immobiliari ad uso residenziale. I vari Piani sono collegati da una scala comune fino al sottotetto. Le principali caratteristiche sono: Impianto fotovoltaico, fibra ottica, pompa di calore aria- acqua a pavimentazione, impianto estrazioni fumi cucina, condizionatori, cappotto, struttura antisismica in c.a.
Caratteristiche principali
Codice:
A344T
Città:
Tolentino
Categoria:
4 o più locali
Locali:
6,5
Camere:
3
Bagni:
2
Mq:
140
Box:
1
Mq Box:
50
Mq Giardino:
190
Balconi:
3
Mq Balcone:
26
Classe energetica:
In fase di valutazione
Stato Immobile:
In Costruzione
Grado:
Signorile
Posizione:
Centro
Panorama:
Vista Aperta
Giardino:
Privato
Riscaldamento:
Autonomo
Tipo Riscaldam.:
Pompa di Calore
Tipo Impianto:
Pavimento
Accessori
Impianto Fotovoltaico
Mappa
Cookie preference